Lokal na sprzedaż Toruń, Na Skarpie

450.00 m²
2 711,11 zł/m2
parter
MERC-LS-5069

1 220 000 zł

Lokal na sprzedaż
Oferta specjalna

Szczegóły oferty

Symbol oferty MERC-LS-5069
Powierzchnia 450,00 m²
Rodzaj budynku biurowo-usługowy
Standard
Piętro parter
Liczba pięter w budynku 1
Stan lokalu do remontu
Okna PCV
Instalacje ELEKTRYCZNA
Rok budowy 2006
Rodzaj lokalu wielopoziomowy
Przeznaczenie lokalu handlowo-usługowy
Woda ciepła - miejska
Ogrzewanie miejskie
Kraty tak
Położenie lokalu ruchliwa ulica
Wejście od ulicy
Podłogi płytki
Pomieszczenia

Opis nieruchomości

Biuro nieruchomości MERCADO oferuje na sprzedaż przestronny lokal handlowo-usługowy o powierzchni 450 m2 usytuowany na dużym osiedlu mieszkaniowym Na Skarpie, w bliskiej odległości do targowiska, w miejscu o  dużym natężeniu ruchu pieszego i stałym przepływie klientów.


STANDARD WYKOŃCZENIA

Dwukondygnacyjny pawilon handlowo-usługowy z użytkową piwnicą o łącznej powierzchni 450 m², posadowiony na działce o powierzchni 577 m² z użytkowaniem wieczystym. Obiekt posiada szerokie, reprezentacyjne wejście. Wszystkie media miejskie. Układ budynku umożliwia łatwy podział na kilka niezależnych lokali, co czyni nieruchomość idealną inwestycją pod wynajem długoterminowy lub prowadzenie kilku działalności jednocześnie (handel, usługi, biura, gabinety). Atrakcyjna lokalizacja oraz duża powierzchnia dają wysoki potencjał dochodowy i stabilną stopę zwrotu z inwestycji.

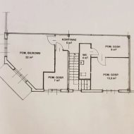
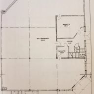
ROZKŁAD POMIESZCZEŃ


Na powierzchnię użytkową lokalu wynoszącą  450 m2 składają się:
PIWNICA:
- bar,
- WC,
- sala konsumpcyjna,
PARTER:
- przestronna sala,
- 2x magazyn,
-  korytarz (dodatkowa duża powierzchnia),
- pomieszczenie z przyłączami wod-kan,
1 PIĘTRO:
- pomieszczenie biurowe,
- 3x pomieszczenie gospodarcze,
- WC.


ATUTY NIERUCHOMOŚCI 

  • Duże, otwarte przestrzenie – łatwe do dowolnej aranżacji lub podziału na mniejsze lokale

  • Wysokie stropy  – wrażenie przestronności, możliwość adaptacji pod handel, usługi lub magazyn

  • Gotowe podłogi z płytek – trwałe, idealne pod intensywną eksploatację komercyjną

  • Ogrzewanie (grzejniki) w pomieszczeniach – komfort użytkowania przez cały rok

  • Dobre doświetlenie światłem dziennym – okna + mocne oświetlenie sufitowe

  • Możliwość prowadzenia działalności handlowej od zaraz (wcześniej sklep)

  • Czytelny układ funkcjonalny – idealny pod wynajem długoterminowy

  • Stan umożliwiający szybkie odświeżenie zamiast generalnego remontu

  • Uniwersalny charakter – handel, usługi, biura, magazyn, ekspozycja, outlet

  • Możliwość wydzielenia kilku niezależnych najemców (różne kondygnacje / strefy)

  • Zaplecze i pomieszczenia dodatkowe – idealne pod magazyn lub archiwum.                           

 
DODATKOWE INFORMACJE

Lokal bezczynszowy.

 WARTOŚĆ NIERUCHOMOŚCI
1 220 000 zł. do negocjacji.

KONTAKT DO AGENTA
W razie dodatkowych pytań zapraszam do kontaktu pod nr tel. 730-047-400.
Zapraszam na prezentację.

KREDYT HIPOTECZNY
W Mercado posiadamy własny Dział Finansowania Nieruchomości. Współpracujemy z ponad 15 bankami, spośród których najlepszą ofertę pomogą Ci wybrać nasi eksperci. Naszym klientom gwarantujemy najniższe oprocentowanie oraz możliwość negocjacji marży z bankami. Bezpłatnie przeprowadzimy Cię przez całą procedurę kredytową, tak aby cały proces był dla Ciebie łatwy, zrozumiały i przyjemny.

Kalkulatory

Kalkulator kosztów

Podatek od czynności cywilno-prawnych

Taksa notarialna
(opłata notarialna)

Wniosek o wpis do WKW

VAT od prowizji
agencji nieruchomości

Vat od taksy notarialnej
(opłaty notarialnej)

Prowizja agencji nieruchomości

Wypisy aktu notarialnego

Razem

Uwaga: mogą wystąpić dodatkowe opłaty za założenie księgi wieczystej oraz ustanowienie hipoteki.

PLN
PLN
PLN
PLN
PLN
PLN
%
PLN

Proszę wprowadzić poprawne imię i nazwisko
Proszę wprowadzić poprawny numer telefonu
Proszę wprowadzić poprawny adres e-mail
Proszę zaznaczyć wymagane zgody
Rozwiąż równanie:
29 1
Niepoprawny wynik